
REMATE JUDICIAL SIN BASE EN U$S
MARTES 14 DE OCTUBRE 14:30 HORAS
En A.N.R.T.C.I. – AV. URUGUAY 826 –
MONTEVIDEO
Importante predio de más de 900 m² edificados,
en La Comercial
Descripción:
Dirección: Cufré 2465/2467, entre Rivadavia e Isla de Gorriti.
Padrón: 421.725, Montevideo.
Superficie terreno (catastro): 764 m2
Frente: 20 metros
Superficie construida (catastro): 947 m2
Cuenta con espacio amplio para vehículos (109 m2), depósitos (620 m2), escritorio
(166 m2), vivienda (52 m2). Las superficies se distribuyen en planta baja y primer
piso, siendo en este último el techo de tipo liviano.
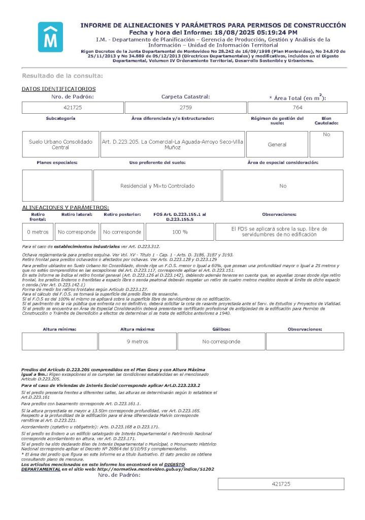
Parámetros urbanísticos municipales en imágenes.
Detalle:
DEUDAS (las cifras se dan a título informativo, es responsabilidad de los interesados
hacer directamente la
consulta en los organismos respectivos)
Según certificado de gravámenes N° 684513 de fecha 22/09/2025
QUE SE DESCUENTAN DEL PRECIO (las paga el comprador pero las descuenta
del saldo de precio):
CONTRIBUCIÓN INMOBILIARIA (CC 3885104):
No tiene deuda.
IMPUESTO DE PRIMARIA:
Debe $ 154.071.- (aprox. US$ 3.951.-)
Paga anualmente según último ejercicio 3 x $ 7.525.-
QUE NO SE DESCUENTAN DEL PRECIO (son de cargo del comprador):
Los honorarios judiciales por cuenta en juicio en la IMM son usualmente del 20% de
la deuda,
es carga del interesado averiguarlo en el sector respectivo.
TARIFA DE SANEAMIENTO (CC 2801154):
Debe $ 442.963.- (aprox US$ 11.400.-)
Deuda en convenio (CC 5192163)
INSTALACIONES MECANICAS Y SANITARIAS (CC 3727817):
Deuda a vencer $ 15.993.- (aprox. US$ 411.-)
TRIBUTOS DOMICILIARIOS (CC 816462):
Deuda $ 184.941.- (aprox. US$ 4.748.-)
ADICIONAL MERCANTIL (3806130):
Deuda $ 428.309.- (aprox. US$ 11.000.-)
Cuenta en juicio (hasta un 20% más por honorarios); Cuenta en clearing.
Sin considerar honorarios judiciales el total adeudado de cargo del comprador es de
aproximadamente
US$ 27.559,.; los honorarios judiciales estimados son aproximadamente de US$
2.200.-,
por lo que el total adeudado de cargo del comprador, estimado aproximadamente, es
de US$ 29.779.-
Tarifa de Saneamiento corre ciertos riesgos de pasar a Cuenta en Juicio en cualquier
momento por lo que
se recomienda a los interesados considerar US$ 32.000.- como deuda más probable
de cargo del comprador.
PRECIO BASE DEL REMATE: Sin base en US$
CONDICIONES DE PAGO: El día del remate en el mismo acto deberá abonar el
30% de su oferta, y el 3,66%
por concepto de comisión e impuestos.
El pago puede hacerlo con letra de cambio o transferencia bancaria en el acto de
remate, también
puede combinar ambas formas de pago. Deberá cumplir con lo establecido en las
Leyes 19.210, 19.478 y 19.889, modificativas, concordantes y decretos
reglamentarios.
En caso de abonar con transferencia deberá gestionar en su Banco antes de la
subasta las
habilitaciones necesarias para poder realizarla en el mismo acto de remate.
¿ COMO HACE PARA SABER DE CUANTO HACER LA LETRA SI NO SABE POR
CUANTO SE VA A VENDER?
Hace una letra por lo menos por el 34% del precio que piense ofertar como máximo.
Sugerimos hacer
la letra por el 40% de forma de quedar cubierto.
¿QUÉ PASA SI SE VENDE POR MENOS?
Lo que sobre de la letra se acredita en el saldo de precio y se le entrega un
comprobante en el acto.
LOS CLIENTES DEL INTERIOR DEBEN CONSTITUIR UN DOMICILIO LEGAL EN
MONTEVIDEO PARA QUE SE LE ENVÍEN
NOTIFICACIONES POR PARTE DEL JUZGADO, ETC. (PUEDE SER FAMILIAR,
AMIGO, ESCRIBANO, ETC).
VISITAS, OCUPANTES. El inmueble está ocupado, de los certificados registrales no
surge ningún arrendamiento inscripto.
DATOS DEL JUZGADO: Juzgado Letrado Civil 14°T° IUE 2-2750/2018
Pasaje de los DDHH 1309, Montevideo.
Las interrogantes de índole jurídico notarial deben ser aclaradas con anterioridad al
día de remate por su profesional de confianza.


EDICTO: Por disposición del Sr/a. Juez Letrado Civil de 14º Turno, dictada en autos: “GENTA GUILLEN, ALEJANDRO c/ CORONEL GRILLO, ROSA – EJECUCIÓN DE HIPOTECA” IUE 2-2750/2018, SE HACE SABER QUE el 14 de octubre de 2025 a partir de las 14:30 horas en Av. Uruguay 826 por intermedio del Rematador ASSAD HAJJOUL Matrícula Nº 5555 RUT 212276850013 en acto presidido por la Sra. ALGUACIL del Juzgado, se sacará a la venta en pública subasta, sin base, en dólares estadounidenses y al mejor postor el siguiente bien inmueble: solar de terreno con construcciones y demás mejoras que le acceden, sito en el Departamento de Montevideo, Localidad Catastral Montevideo, zona urbana, empadronado con el número 421.725, que según plano del Agrimensor Huascar Gabriel Camblor Calafat de junio de 2006, inscripto en la Dirección Nacional de Catastro con el número 39.418, el día 15 de agosto de 2006, consta de una superficie de 763 m 50 dm y se deslinda así: 20 metros de frente al Este a la calle Cufré, puertas de entrada números 2465 y 2467; 38 metros 56 centímetros al Sur lindando con los padrones números 59.300 y 59.302; 20 metros 1 centímetro al Oeste lindando con el padrón número 86.120 y 37 metros 80 centímetros al Norte lindando con el padrón número 59.297. SE PREVIENE QUE: 1) El mejor postor deberá consignar el 30% de su oferta en dólares americanos en carácter de seña en el acto de serle aceptada la postura, siendo también de su cargo la comisión del rematador más IVA y tributos que la ley le impone, debiendo constituir domicilio dentro del radio del Juzgado. Dicho pago deberá realizarse en el acto y deberá cumplir con lo con lo establecido en las Leyes 19.210, 19.478 y 19.889, modificativas, concordantes y decretos reglamentarios. 2) En el acto de remate el mejor postor y el segundo mejor postor deberán constituir domicilio conforme art 71 del CGP (domicilio real y procesal electrónico judicial). 3) Que será de cargo del comprador los gastos de escrituración y los que la Ley ponga a su cargo. 4) Que será de cargo del expediente la comisión más IVA de venta del rematador o sea el 1,22% del precio del remate.- 5) Que solo son imputables al precio los tributos necesarios para la escrituración (Contribución Inmobiliaria y Primaria) que sean generados hasta la fecha del remate, ITP e IRPF de la parte vendedora si correspondiere, se reintegrarán luego de otorgada la respectiva escritura.- 6) Que el mejor postor deberá depositar el saldo de precio en cuenta abierta bajo el rubro de autos y a la orden de la Sede el plazo de 20 días corridos contados a partir del día hábil siguiente al de la notificación del auto aprobatorio del remate y que no se interrumpirá por las Ferias Judiciales ni por la semana de turismo de conformidad con lo dispuesto por el literal F del art.387.2 del CGP en la redacción dada por la Ley 19090. En caso de estar el mejor postor exonerado de seña y/o del precio, igualmente deberá pagar la Comisión del Rematador y los gastos del Remate. 7) Que se desconoce la existencia de deudas nacionales y/o municipales o departamentales que afecten el bien inmueble, situación ocupacional y su estado de conservación, regularidad de las construcciones art.71 ley 18308, situación contributiva ante BPS.- 8) Que el inmueble se remata en las condiciones jurídicas y materiales que surgen del expediente, certificados y documentación presentada, que se encuentran a disposición de los interesados en la Oficina del Juzgado sita en el Palacio de los Tribunales, Palacio de los Tribunales, pasaje de Los Derechos Humanos Nº1309 de Montevideo, debiéndose tener presente el art.390 inc. final del CGP siendo de cargo de los interesados toda averiguación complementaria y lo dispuesto por la Ley 19.574 Lavado de Activos en lo correspondiente..- Y a los efectos legales se hacen éstas publicaciones dejándose constancia que se libra el presente conforme información arrojada por Certificados: Registro de la Propiedad Inmobiliaria y Registro Nacional de Actos Personales, al 08/09/2025. Montevideo, 15 de septiembre de 2025. -ALEXANDRA SABRINA MACHADO RUSU, Actuario Adjunto
INFORMES:
ASSAD REMATES
assad@remate.com.uy
www.assad.com.uy
CONVENCION 1343 ESC. 1112 – MONTEVIDEO
Tels. 2900 30 99 – 2900 46 20 Cel. 092 50 55 55